- scritto da Enza Laudone
- categoria Progetti
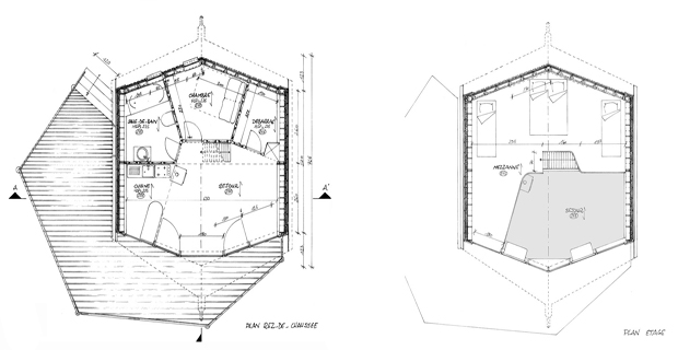
La casa in legno nascosta nella foresta
All’interno di una foresta, nelle vicinanze del torrente Ri d’Alyse che segna il confine tra Francia e Belgio, si trova, nascosta fra gli alberi, una piccola casa per le vacanze. È una costruzione ecologica, progettata dall’architetto Pierre Deru, dello studio di architettura AADD.
CASE nella foresta PER VIVERE IN STILE SCANDINAVO
La volontà di allontanarsi dalla vita frenetica della città e rilassarsi a contatto con la natura, ha spinto una famiglia a comprare un terreno nella foresta di Viroinval e uno chalet. Quest’ultimo, tuttavia, in pessime condizioni, è stato ricostruito dall’architetto Pierre Deru che, con un budget modesto, ha dato vita ad una casa in legno dall'organismo che dialoga con l’ambiente circostante.
Pierre Deru ha progettato delle forme organiche, dinamiche, curve, che entrano in armonia con gli elementi naturali, utilizzando delle tecniche costruttive rispettose dell’ambiente, nessun impatto negativo sulla foresta.


La copertura ha una forma ogivale, aggettante per proteggere la facciata vetrata; all’interno presenta un motivo a losanghe o a “nido d’ape”, che si ispira alle famose opere di Philibert Delorme. L’intradosso, oltre ad avere una funzione strutturale, rappresenta una decorazione costante in tutti gli ambienti della casetta in legno. Offre, altresì, la possibilità di personalizzare gli spazi, attraverso piccole mensole incastrate, dando vita a piccole librerie e porta oggetti.



All’interno, in continuità con l’ambiente esterno, è presente una scultura dallo stile africano; si tratta di un tronco d’albero scolpito che funge da scala. Un elemento particolare che attira molto l’attenzione dei bambini.
La casa è interamente in legno, con la facciata rivolta a sud completamente vetrata. I materiali sono tutti ecologici: legname certificato FSC, sughero, argilla, cellulosa e lana di legno. Quasi nulle le emissioni di CO2; una stufa a legna per il riscaldamento e la cottura dei cibi; in facciata due pannelli solari integrati a due boiler, riscaldano l’acqua sanitaria, e la depurazione è praticata mediante lagunaggio e compostaggio.