- scritto da Lucia Terenziani
- categoria Progetti
Il ruolo della progettazione architettonica nell'acquisto della prima casa
Qual è il ruolo della progettazione architettonica nel mercato immobiliare? Il programma di sviluppo urbano proposto dallo studio OJT di Jonathan Tate si occupa delle case entry-level cioè di abitazioni per acquirenti che si avvicinano al grande sogno della casa di proprietà per la prima volta. Il primo scoglio che si incontra quando si decide l'acquisto della prima casa, di rendersi indipendenti e costruire la propria vita fuori dal nido familiare sono i prezzi delle abitazioni. Il luogo in cui costruirsi la propria autonomia spesso ha un costo inaccessibile per giovani acquirenti.
NEW ORLEANS: LA RICOSTRUZIONE DOPO KATRINA

A volte, più che un aiuto economico per risolvere il problema, è necessario che la pianificazione urbanistica e la progettazione architettonica sappiano dare risposte ad una domanda emergente. C’è bisogno di scelte strategiche, di programmare delle politiche che incentivino le nuove generazioni a uscire dalla propria famiglia d’origine e trasferirsi verso altri luoghi con l'acquisto della prima casa.
L’idea di un piano per la creazione di abitazioni accessibili per tutti è partita da New Orleans. Uno sviluppatore, un architetto e un costruttore hanno deciso di promuovere e finanziare moduli costruttivi che potessero essere replicabili anche in altre città. Hanno puntato sull'acquisto di quei lotti poco appetibili e indesiderabili perché troppo piccoli o risultato di ritagli di precedenti lottizzazioni.
Avanzi, insomma.
Dando una nuova possibilità al terreno di “scarto”, di dimensioni difficili e tra altri edifici, hanno creato le condizioni perché nascessero nuove abitazioni. Il limite è diventato una risorsa: prezzi bassi di acquisto del terreno e una mano progettuale illuminata ha saputo dare risposte a un’esigenza reale quale l’acquisto della prima casa.
Del resto, l’architettura ha eseguito ciò che è da sempre nel suo DNA: risolvere i problemi delle persone.
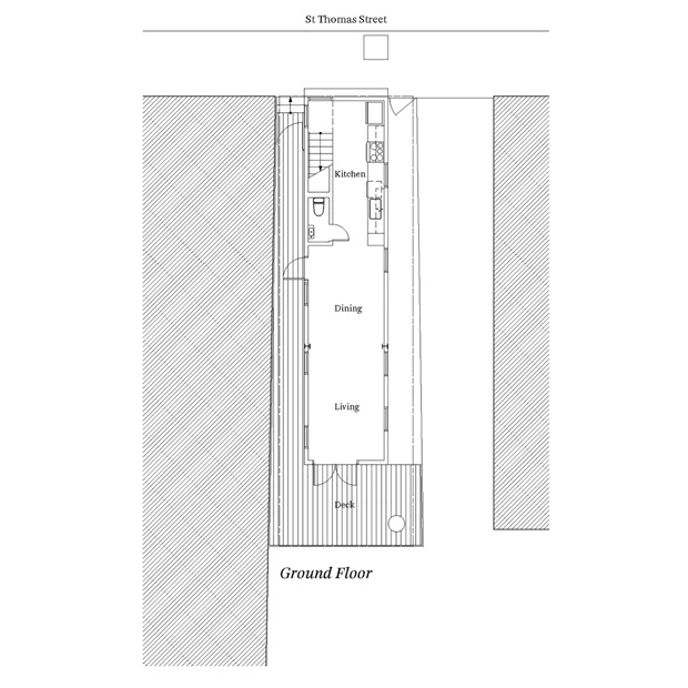
Il primo modulo completato nell’ambito di questo ambizioso programma si trova al n° 3106 di St. Thomas, nel quartiere irlandese di New Orleans. Il lotto si trova tra capannoni industriali e le dimore storiche risalenti agli inizi del Novecento. Originariamente il lotto era stato pensato per essere la naturale continuazione del cortile posteriore di una casa adiacente e misurava solamente 5x17 metri. Inoltre, la progettazione è stata ulteriormente complicata dalla posizione del lotto, inserito in un quartiere storico, vincolato da un garbuglio di norme e linee guida per dimensioni e volumetrie.


Dal punto di vista architettonico i progettisti, inserendo il manufatto all’interno di un quartiere industriale, hanno rotto la monotona sequenza percepita dal fronte strada, rivendicando un'autonomia ritmica del manufatto. Inoltre, l’abitazione poggia su una pedana soprelevata, che isola la costruzione da ciò che ha intorno. La struttura, stretta e alta, pari a 298 metri quadrati, offre agli abitanti tre livelli, con una camere da letto lontana dal lato strada al secondo piano, un bagno e uno studio.


Il risultato è stato un modulo in grado di creare le condizioni sufficienti per un’abitazione per single o coppia, categorie che hanno sempre trovato difficoltà ad individuare alloggi disponibili nella zona per l'acquisto.
La strategia Starter Home è flessibile, adattabile e soprattutto uno spunto importante per chi crede nell’importanza di ricucire e riqualificare le nostre periferie, riconsiderando quegli spazi dimenticati che, invece, possono essere teatro di un futuro abitato. Senza andare ad intaccare nuovi terreni vergini.
Lo diceva mia nonna che in cucina non si butta via niente: anche nella pianificazione urbanistica, grazie a un po’ di lungimiranza, il più piccolo ritaglio può essere una risorsa.




- crediti fotografie © William Crocker