- scritto da Lucia Terenziani
- categoria Progetti
Vacanze in un fienile: si recupera l'edificio e l’atmosfera di un tempo
Un fienile del XIX secolo, situato in un piccolo villaggio nella regione di Ukermark, nella parte settentrionale della Germania, è stato trasformato in una casa per le vacanze dallo studio di architettura Thomas Kroeger.
IL RECUPERO DI UN VECCHIO FIENILE IRLANDESE


Il recupero è un’operazione difficile, quasi un’intervento chirurgico. È necessario, da una parte, capacità di osservazione, attenzione e rispetto per le strutture, e dall’altra, destrezza nell’organizzazione degli spazi funzionali, in modo da rendere adatto l’ambiente alle esigenze di chi lo andrà ad abitare.


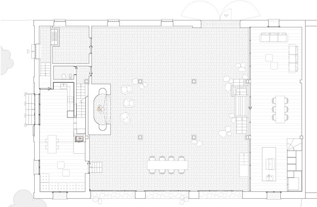
Cuore del focolare domestico e dell’intervento è la maestosa sala principale, a doppia altezza, che permette di osservare le capriate in legno, vecchie di 140 anni, lasciate al grezzo, per mostrarne l’essenza. Sono stati inoltre aperti varchi ad arco che collegano la struttura al frutteto: lo spazio centrale può essere vissuto in continuità con l’esterno.


© TKA Thomas Kröger Architekt
L’intento dei progettisti berlinesi è chiaro: il vecchio fienile, trasformato in casa di vacanze non doveva perdere la propria identità di granaio. Dall’esterno, la struttura doveva mantenere l’aspetto riconoscibile per cui era stata costruita. L’idea del focolare domestico in cui riunirsi, soprattutto nei mesi invernali, è stato reso tramite l’installazione di un grande camino in mattoni rossi, in cui sono state ricavate due nicchie per potersi sedere e godere il calore e la luce emanati dal fuoco.
La struttura è suddivisa in tre sezioni: la grande sala, al cui lato è stata ricavata la zona riservata ai proprietari e, dietro il grande camino, la parte per gli ospiti. Durante i mesi freddi solo le parti private sono riscaldate, quasi ci si dovesse ricongiungere in uno spazio più raccolto.
© TKA Thomas Kröger Architekt
Attraverso scalini di legno si raggiungono le aree superiori, che si affacciano sulla sala con grandi pareti vetrate. Le zone più intime, camere e bagni, sono create tramite divisori in legno.
È stata costruita una sorta di piattaforma per sopraelevare il pavimento delle parti private, in cui sono ospitati scaffali per scarpe, cappotti e anche una dispensa.



La luce, nella parte dedicata ai proprietari, filtra tramite un lucernario a forma di piramide tronca, creata tramite listelli, che conferisce un’atmosfera intima e protetta e permette una buona visibilità nel vano scale e nel bagno al piano superiore. Una scala bianca porta al piano superiore, dove sono state ricavate tre camere da letto, i bagni e gli studi.
La scelta delle piastrelle dei pavimenti dei bagni, blu e bianche, rimanda a un motivo floreale, mentre uno specchio montato in un'apertura ad arco è stato posizionato per riflette la luce dal lucernario sopra alla zona giorno.
La zona ospiti, schermata dal grande camino, ha un ingresso autonomo e si sviluppa con soggiorno e zona pranzo a piano terra, mentre a piano superiore sono posizionate due camere da letto e un bagno; accanto alla canna fumaria c’è un corridoio che porta agli ambienti di residenza dei proprietari.
© TKA Thomas Kröger Architekt
© TKA Thomas Kröger Architekt

©TKA Thomas Kröger Architekt
- crediti fotografie © Thomas Heimann