- scritto da Marta Boriani
- categoria Progetti
Il teatro rosso con un cuore verde. Prefabbricazione in legno a Montpellier
Un volume rosso che si staglia sullo sfondo verdeggiante di una pineta ma che può sparire ed essere ricostruito in un altro luogo, questo è lo spettacolo che offre il Jean–Claude Carrière Theatre a Montpellier. Il progetto del teatro in legno è firmato dallo studio francese A+ architecture che rivaluta il mondo della prefabbricazione per creare un edificio dal cuore verde interamente smontabile e a basso consumoenergetico.
The Shed: il nuovo teatro di Londra è tutto rosso
Prefabbricazione e natura: la Sunset Cabin in Ontario
L’edificio si trova nel cuore di un bosco di pini, nel quartiere Domaine d’O di Montpellier, e accoglie i visitatori con un prospetto vivace e colorato che ricorda la maschera di Arlecchino. La struttura rosso fuoco è infatti rivestita da una griglia di legno le cui assi sono disposte in modo obliquo a ricordare il tessuto della famosa maschera.


Pannelli colorati riempiono alcuni rombi nati da questi incroci che, se di giorno conferiscono alla facciata un aspetto dinamico e divertente, di notte la trasformano in una colorata lanterna luminosa.
L’accesso al teatro avviene attraverso un’ampia piazza pubblica che offre respiro all’architettura creando un luogo di incontro per tutto il quartiere.


Il colore rosso e il legno creano una continuità stilistica tra esterno ed interno, definendo l’intero progetto.
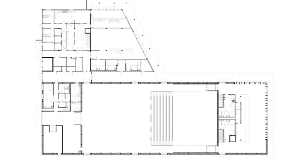
Nonostante sia ottenuto dallaprefabbricazione e sia totalmente smontabile, il Jean–Claude Carrière Theatre offre tutti i servizi di qualsiasi teatro, potendo contare su una sala che può ospitare fino a 600 spettatori.


ROSSO FUORI E “VERDE” DENTRO
L’aspetto più interessante dell’intero progetto è il suo carattere ecosostenibile, dato non solo dai materiali utilizzati, ma anche dalla possibilità di smontare l’edificio completamente per poi ricostruirlo in un altro luogo. Aspetto per altro molto stimolante se si pensa che si tratta di un teatro, in questo caso potrebbe non essere lo spettacolo a spostarsi di città in città ma il teatro stesso!


Il sistema di moduli prefabbricati in legno, impiegati per realizzare l’intero edificio, non solo consente il riutilizzo di ogni singolo pezzo, smontabile e nuovamente assemblabile, ma ha permesso tempi rapidissimi di montaggio, una conseguente diminuzione dei trasporti e un ridotto consumo di materiale.

Il legno utilizzato per la facciata, e che riveste tutti gli interni, è certificato PEFC, un sistema di certificazione per la gestione forestale sostenibile a livello nazionale e regionale. Questo consente, oltre alla tutela delle piante, un elevato isolamento termico ed acustico. Quest’ultimo aspetto, fondamentale in un teatro, è garantito da uno studio basato sull’angolazione e sulla lunghezza precisa di ogni asse di legno, in modo da evitare echi interni alla sala e rumori molesti verso il quartiere circostante.


Simulazioni termiche hanno permesso di progettare l’edificio in modo di ridurre al minimo l’utilizzo di sistemi di condizionamento meccanici e l’intera illuminazione funziona a LED.
Il risultato è un volume rosso ma con un grande cuore “verde”.
- crediti fotografie © Marie Caroline Lucat