- scritto da Elena Bozzola
- categoria Progetti
Un centro di accoglienza sostenibile per le donne vittime di violenza
Ci troviamo in Tanzania e precisamente a Moshi, nella regione del Kilimanjaro, tristemente famosa per i numerosi casi di violenza sulle donne che, purtroppo, non hanno gli strumenti giuridici e culturali per opporsi a questo stato di cose e non sono abbastanza tutelate dalla legge.
Qui opera l’organizzazione Kilimanjaro Women Information Exchange and Consultancy Organization (KWIECO), fondata nel 1987 per offrire un servizio di consulenza alle donne bisognose di risposte su questioni legali, economiche, sociali e di salute.
E’ proprio in questo contesto che, grazie al supporto della ONG Ukumbi e allo stanziamento di fondi del Ministero degli Affari Esteri finlandese, KWIECO ha affidato allo studio di architettura Hollmèn Reuter Sandman Architects la progettazione di una struttura comunitaria, un centro di accoglienza sostenibile per le donne che hanno subito violenze domestiche e hanno il diritto di vivere e studiare insieme ai propri bambini.


IL PROGETTO DEL CENTRO DI ACCOGLIENZA
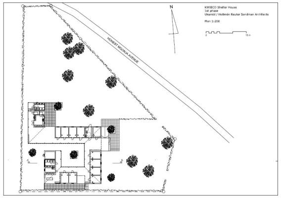
La prima fase del progetto si è conclusa a maggio 2015 con il completamento di Shelter House, la parte dedicata agli alloggi; per la seconda fase, cioè la realizzazione di una scuola adiacente, Ukumbi e KWIECO stanno cercando di raccogliere fondi.
L’abitazione ecosostenibile abbraccia tre cortili esterni che favoriscono l’illuminazione naturale e la ventilazione degli ambienti. Le pareti, dentro cui sono inserite bottiglie di vetro attraverso le quali permea la luce naturale creando particolari effetti, sono ricavate dalla trasformazione dei rifiuti in materiali da costruzione. Tutti i passaggi sono coperti da portici realizzati in metallo, mentre le coperture sono rivestite con pannelli solari e fotovoltaici che forniscono acqua calda ed energia pulita a ogni abitazione.
I materiali sono stati reperiti sul posto, si sono scelti colori brillanti ed è stata rispettata la cultura locale per rendere il centro di accoglienza una casa allegra e confortevole, capace di ospitare venti donne con i loro bambini in modo sicuro, oltre agli uffici.
Si tratta di un progetto partecipato, che ha coinvolto le donne che hanno collaborato con gli architetti, aiutandoli a realizzare una casa in grado di soddifare le loro necessità e aumentare il loro senso di appartenenza al luogo.
